Close

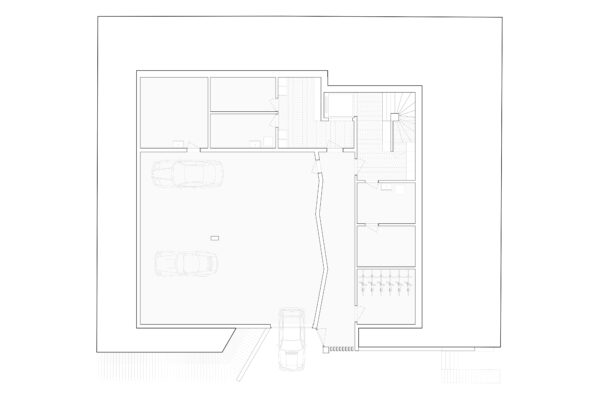
Gisleracherweg — Vermarktungsstart erfolgt

Seit dem 18. Mai 2026 in der Vermarktung:
Neun moderne Einfamilienhäuser mit 5.5- und 6.5-Zimmern an zentraler, ruhiger Wohnlage.
Durchdachte Grundrisse, grosszügige Dispo–|Abstellräume und eine familienfreundliche Begegnungszone als verbindendes Element der Überbauung.

Mehr Informationen unter: 
→ gisleracherweg.ch

Gemeinsam zu Tisch

Der Tisch ist gedeckt, das Essen perfekt – guten Appetit, jetzt speist die ganze Sippschaft mit! Herzlichen Dank an das Team der Kostgeberei für die fantastische Verköstigung und den wundervollen Abend in privater Atmosphäre.

Baustart erfolgt

Am Gärtnerweg in Kriens entsteht ein zukunftweisendes Mehrfamilienhaus mit Philosophie – im Zentrum steht der Mensch und das Miteinander. Ein modernes Wohnkonzept geprägt vom Wechselspiel aus Begegnungsmöglichkeiten und Rückzug bietet sieben altersgerechte Wohnungen und eine Orangerie zur gemeinschaftlichen Nutzung

Schöne Feiertage

Mit besten Wünschen für ruhige und entspannte Feiertage, sowie ein gutes und erfolgreiches neues Jahr 2026.

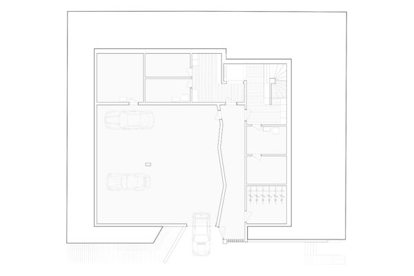
Gisleracherweg — Projektankündigung

Nach einem anspruchsvollen Entwicklungsprozess erfüllt es uns mit besonderer Freude, im Februar 2026 mit dem Verkauf unser neun Einfamilienhäuser zu starten. Mehr Infos: 

 www.gisleracherweg.ch

Herbstausflug 2025

Unser diesjähriger Herbstausflug führte uns nach Basel und in die umliegende Region. Nach einer spannenden Architekturführung über den Vitra-Campus durften wir beim farbenfrohen Graffiti-Workshop unserer Kreativität freien Lauf lassen. Den gelungenen Tag liessen wir bei einem feinen Abendessen im Volkshaus ausklingen

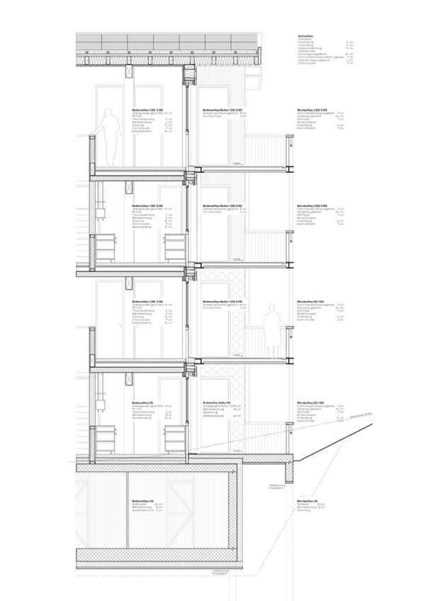
Terrassenhaus Lindenbergstrasse Hitzkirch

Wir freuen uns über den 1. Rang beim Studienauftrag Ersatzneubau Terrassenhaus Lindenbergstrasse in Hitzkirch.

«Savoir Vivre»

Die Kunst das Leben zu geniessen. Das diesjährige Neujahrsessen genossen wir mit viel französischem Flair im Chez Be in Sursee. Herzlichen Dank dem ganzen Team für die tolle Arbeit und dem Chez Be für die fantastische Verkostung.

Verstärkt für ein neues Morgen

Ein NEUES MORGEN baut auf einem ERFOLGREICHEN GESTERN auf — Herzlichen Dank an Markus Bachmann und Kurt Gabriel, welche die Firma Bachmann + Gabriel Architekten AG im Jahr 1990 gründeten und den Weg mit viel Leidenschaft und Engagement für einen Generationenwechsel mit Yannick Bucher zu B2G ARCHITEKTEN SIA AG im Jahr 2019 ebneten. Euren Spirit, euer Machertum und euer unermüdliches Engagement wird uns noch lange inspirieren.

→ Medienmitteilung

Happy Holidays

Mit besten Wünschen für ruhige und entspannte Feiertage, sowie ein gutes und erfolgreiches neues Jahr 2025.

Baustelle

Update Baustelle Wohnüberbauung Konstanz Nord Rothenburg.

→ zum Projekt

Baustelle

Update Baustelle der Wohnüberbauung Murhubel in Triengen.

→ zum Projekt

Herbstausflug

Dieses Jahr besuchten wir das Atthisholz-Areal bei Solothurn. Der Tag war gefüllt mit einer spannenden Arealführung, amüsantem Urban-Golf und einem köstlichen Abendessen im Salzhaus.

Herzlichen Glückwunsch

Andrin hat Grossartiges geleistet und die Lehrabschlussprüfung mit Bravour bestanden.

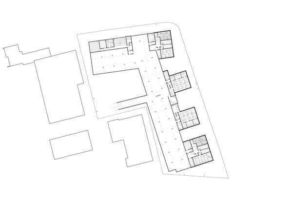
Baueingabe

Wir freuen uns über die Baueingabe für den Ersatzneubau Gärtnerweg in Kriens.

Studienauftrag EFH—Ensemble Küssnacht ZH

Unser Projektbeitrag für den zweistufigen Studienauftrag im selektiven Verfahren Neubau EFH—Ensemble Rebackerstrasse Küssnacht ZH.

Baustart

Nach einer langen Planung ist es soweit. Wir freuen uns sehr über den Baustart der Wohnüberbauung Konstanz Nord in Rothenburg.

→ zum Projekt

Studienauftrag Ersatzneubau Herbstweg Zürich

Wir freuen uns über den Zuschlag beim zweistufigen Studienauftrag im selektiven Verfahren für den Ersatzneubau Mehrfamilienhaus Herbstweg in Zürich.

Schulraumerweiterung und Doppelturnhalle Rain

Unser Beitrag für den öffentliche Projektwettbewerb Schulraumerweiterung und Doppelturnhalle Rain.

Möchten Sie unsere Zukunft aktiv mitgestalten?

Zur Verstärkung unseres Teams suchen wir per Juni 2024 oder nach Vereinbarung eine:n erfahrene:n und engagierte:n projektleitende Architekt:in 80-100% und per August 2024 eine:n erfahrene:n und architekturaffine:n Architekt:in oder Zeichner:in EFZ 80-100%. Wir freuen uns auf Ihre Bewerbung. Senden Sie Ihre Bewerbung mit Portfolio Ihrer Arbeiten an Daniela Eschmann, daniela@b2garchitekten.ch.

→ Download Stelleninserat projektleitende:r Architekt:in
→ Download Stelleninserat Architekt:in oder Zeichner:in

Neujahrsessen 2024

Das Neujahrsessen durften wir in diesem Jahr im «Sprötzehüsli» in Sempach verbringen. Mit einer feinen Grillade und einem gemütlichen Abend läuteten wir das 2024 ein.

Frohe Festtage

Mit besten Wünschen für ruhige und entspannte Feiertage, sowie ein gutes und erfolgreiches neues Jahr 2024.

Teamausflug

In diesem Jahr führte uns der Teamausflug bei mystischen Herbstwetter ins Toggenburg auf die Chäserrugg. Auf dem Rückweg nach Sempach bekamen wir spannende Einblicke bei Baumustercentrale Zürich. Am Abend bei ausgelassener Stimmung fanden wir einen sehr leckeren Abschluss in der Giesserei Oerlikon.

Studienauftrag Raiffeisenbank

Mit unserem Projektbeitrag zum Neubau Raiffeisenbankgebäude in Buttisholz erlangten wir der 3. Schlussrang

Klarheit durch Reduktion

Im Karton Ausgabe #85 September 23 schreibt Cyrill Chrétien über die Suche nach Stringenz & Prägnanz in den Entwürfen von Yannick Bucher.

→ zum Artikel

Baubewilligung erhalten

Mit dem Erhalt der Baubewilligung für die Wohnüberbauung Murhubel in Triengen schauen mit voller Vorfreude auf die Ausführungsphase.

→ zum Projekt

Rudern auf dem Sempachersee

Vielen Dank Seeclub Sempach für die wundervollen Einblicke ins Rudern.

30-Jähriges Firmenjubiläum

Wir sind stolz, dich - liebe Lydia - in unserem Team zu haben und danken dir für deinen Einsatz, deine Treue und die angenehme Zusammenarbeit.

Neue Website

Unsere Website wurde überarbeitet und mit neuem Inhalt gefüllt. Viel Vergnügen beim surfen.

Baubewilligung erhalten

Wir freuen uns über den Erhalt der Baubewilligung für die Wohnüberbauung Konstanz Nord in Rothenburg.

→ zum Projekt

Studienauftrag Ligschwil

Unser Projektbeitrag zum eingeladenen Studienauftrag für eine Wohnüberbauung in Ligschwil.

→ zum Projekt

Besichtigung

Bauvollendung Einfamilienhaus im Gimmermee in Rothenburg.

Start Teilabbruch

Vor kurzem wurde mit Teilabbruch für die Totalsanierung der Liegenschaft an der Rainerstrasse 2 in Sempach begonnen. Das ausführliche Projekt wird in kürze auf unserer Website publiziert.

Frohe Festtage

Einen herzlichen Dank für die gute Zusammenarbeit und die interessanten Gespräche in diesem Jahr. Nun gilt es sich etwas zurückzulehnen und Zeit in den Kreisen der Liebsten zu verbringen. Auch wir tanken Energie fürs neue Jahr und wünschen allen fröhliche Festtage und einen erfolgreichen Start ins 2023.

Fotoshooting

Bauvollendung Schulhauserweiterung Chrüzmatt Rain.

→ zum Projekt

Baueingabe zum Zweiten

Es freut uns, dass wir noch vor den Festtagen die Baueingabe für die Wohnüberbauung Murhubel in Triengen einreichen konnten. Wir freuen uns auf eine spannende Ausführungsphase.

→ zum Projekt

Baueingabe

Nach einer intensiven Bearbeitungsphase können wir pünktlich auf Ende des Jahres die Baueingabe für die Wohnüberbauung Konstanz Nord in Rothenburg einreichen. Wir freuen uns, dass es bald weitergehen kann.

→ zum Projekt

Coming Soon

Die B2G-Familie wächst und kann bald ihr Atelier vis à vis beziehen.

Aktuell — Verkauf EFH Gisleracherweg Aktuell — Verkauf EFH Gisleracherweg Aktuell — Verkauf EFH Gisleracherweg Aktuell — Verkauf EFH Gisleracherweg Aktuell — Verkauf EFH Gisleracherweg Aktuell — Verkauf EFH Gisleracherweg Aktuell — Verkauf EFH Gisleracherweg Aktuell — Verkauf EFH Gisleracherweg Aktuell — Verkauf EFH Gisleracherweg Aktuell — Verkauf EFH Gisleracherweg Aktuell — Verkauf EFH Gisleracherweg Aktuell — Verkauf EFH Gisleracherweg Aktuell — Verkauf EFH Gisleracherweg Aktuell — Verkauf EFH Gisleracherweg Aktuell — Verkauf EFH Gisleracherweg